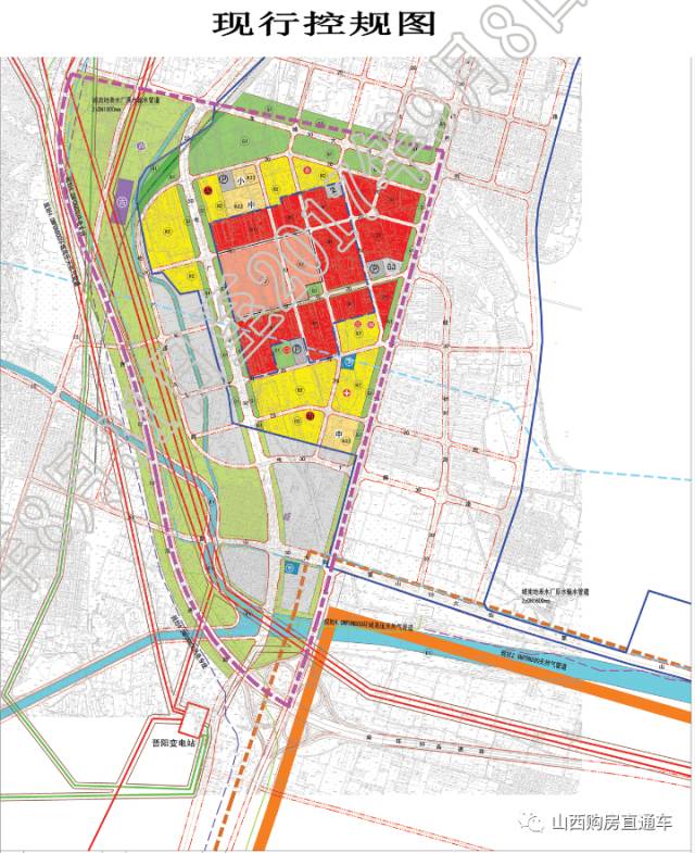
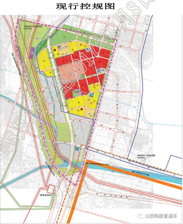
晋阳湖西岸正在经历动态更新,这不仅是一次城市发展的展示,更是一次学习之旅的延伸。这里的变化展示了自信与成就感的源泉,通过不断的更新与改进,晋阳湖西岸为居民提供了更丰富、更活力的生活体验。这里不仅是生活的舞台,更是知识与技能的进阶场所,人们在变化中不断成长,收获自信与成就感。
晋阳湖西岸,一个地理位置得天独厚的地方,见证了无数人的奋斗与梦想,当前,这里正经历一场前所未有的更新迭代,不仅仅是物质层面的翻新,更是精神层面的升华,这是一个充满挑战与机遇的时代,我们需要不断学习、适应变化,才能在激烈的竞争中站稳脚跟。
当你站在晋阳湖西岸的岸边,眺望着湖面波光粼粼的美景,内心会充满对未来的憧憬和向往,这里,每一个转角都充满了惊喜,每一次学习都是一次自我超越,正是这种不断学习和适应变化的精神,让我们在人生的道路上越走越宽广。
我们要坚信,学习是改变命运的关键,在这个日新月异的时代,我们必须保持敏锐的洞察力和应变能力,当我们勇敢地迎接挑战时,我们会发现,每一次克服困难都是一次自我成长的机会,这种成就感是无价的,它让我们更加自信地面对未来。
晋阳湖西岸的动态更新,正是时代变迁的缩影,这里汇聚了众多优秀的企业和人才,他们共同创造一个更加美好的未来,我们可以看到科技的力量如何改变生活,如何推动社会的进步,这种变革的精神,也激励着我们不断学习和进步。
我们也要注意在紧张的学习与工作中寻找乐趣,幽默感是生活中的调味品,当面对挑战时,用一颗幽默的心去面对,这样我们会发现,生活可以更加美好。
让我们紧紧握住晋阳湖西岸动态更新的机遇,勇敢地迎接挑战,不断地学习和成长,我们不仅要关注物质的丰富,更要关注精神的富足,用乐观的心态去面对生活中的挑战,只要我们保持一颗进取的心,我们就能在变化中找到自己的方向,实现自己的梦想。
让我们一起为晋阳湖西岸的动态更新欢呼,为每一个勇敢追求梦想的人加油,我们的梦想起航,我们实现目标的舞台宽广,让我们一起努力,共同创造一个更加美好的明天!同时我们也要时刻关注环境保护和可持续发展的问题,确保这片美丽的土地能够持续地为我们带来生机与活力。



还没有评论,来说两句吧...